Jedná se o náš věrnostní program, díky kterému můžete využívat exkluzivní nabídky a výhody již při vaší první rezervaci provedené na SamBoat. Klub SamBoat je jednoduchý a zdarma !
Urlaub auf dem Hausboot "Ariella" – Entspannung und Abenteuer für die ganze Familie. Genieße Deinen Urlaub auf dem gemütlich eingerichteten Hausboot "Ariella" und entdecke die Seenlandschaft rund um die Marina Röblinsee und ihre Umgebung. Mit Platz für bis zu 7 Personen (5+2), kannst Du führerscheinfrei mit Deiner Familie oder Freunden die Natur genießen. Die Ariella bietet ein Elternschlafzimmer mit Doppelbett, ein Kinderschlafzimmer mit Etagen und Einzelbett sowie eine Doppelbettcouch im Wohnzimmer für zusätzlichen Schlafplatz. Bei schönem Wetter lädt die großzügige Dachterrasse mit wetterfester Loungegarnitur und optionaler Bimini-Verschattung zum Entspannen ein. An kühleren Abenden oder regnerischen Tagen kannst Du es dir vor dem Gas-Kamin gemütlich machen und einen Film auf dem großen Smart-TV genießen. WLAN ist ebenfalls vorhanden. Das Boot ist mit allem ausgestattet, was Du für einen erholsamen Urlaub brauchst: eine voll ausgestattete Küche mit Gasherd, Backofen, Geschirrspüler sowie eine Heizung, Klimaanlage und ein WC mit bodengleicher Dusche. Eine Badeleiter am Außendeck sorgt für einen einfachen Zugang ins Wasser. Für einen gemütlichen BBQ-Abend kannst Du einen Grill ausleihen, und für zusätzliche Aktivitäten stehen ein Stand-Up Paddle, Kanu, Elektroschlauchboote oder Fahrräder gegen Gebühr zur Verfügung. Die Mitnahme von Hunden ist bis 15 kg erlaubt. Wichtige Hinweise: Durchfahrtshöhe: 3,90 m (mit ausgeklapptem Sonnensegel: 5,45 m). Bitte klappe das Sonnensegel ein, bevor Du eine Brücke passierst. Mindestanzahl der Personen an Bord: Für die Manövrierfähigkeit der Hausboote (Anlegen, Ankern, Schleusen) sind mindestens 3 erwachsene Personen (oder 2 Erwachsene + 1 handlungsfähiger Jugendlicher) erforderlich. Wetterbedingte Einschränkungen: Die Hausboote sind windanfällig. Bei einer Windstärke von 3 (ab 12 km/h) kann die Marina die Ausgabe der Hausboote verhindern, um die Sicherheit aller Beteiligten zu gewährleisten. Das Hausboot ist mit einer Bordbatterie ausgestattet, die euch eine autarke Stromversorgung für eine Nacht ohne Landstrom sichert. Das Beste daran: Ihr könnt frei ankern und die Ruhe der Natur in vollen Zügen genießen – fernab vom Trubel der Marinas. Aber denkt daran: Nach spätestens 24 Stunden braucht die Batterie frischen Strom aus einer Marina, sonst drohen nicht nur nervige Warntöne, sondern auch der Ausfall wichtiger Systeme wie Bug- und Heckstrahlruder – was das Manövrieren erschwert. Deshalb unser Tipp: Geht bewusst mit dem Strom um und nutzt nur, was wirklich nötig ist. So bleibt eure Freiheit auf dem Wasser ungetrübt! Worauf wartest Du noch? Mieten, einsteigen, los schippern und Deinen unvergesslichen Hausbooturlaub genießen!
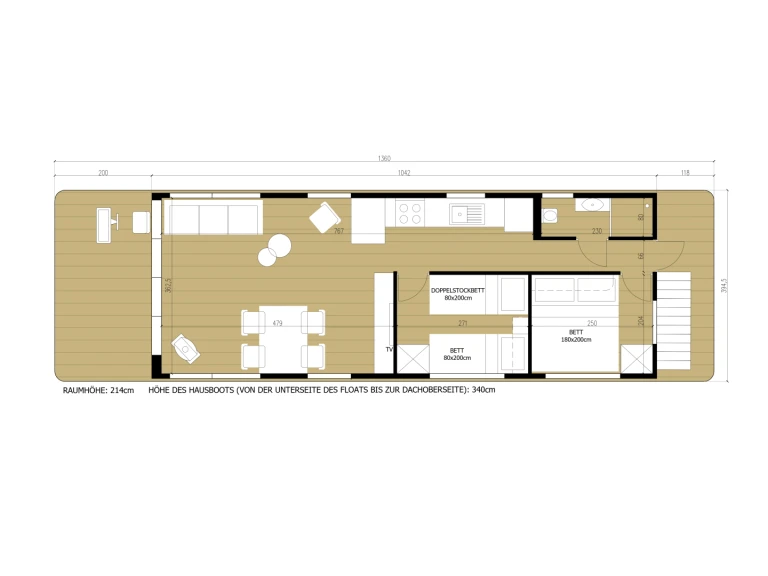
Urlaub auf dem Hausboot "Ariella" – Entspannung und Abenteuer für die ganze Familie
Genieße Deinen Urlaub auf dem gemütlich eingerichteten Hausboot "Ariella" und entdecke die Seenlandschaft rund um die Marina Röblinsee und ihre Umgebung. Mit Platz für bis zu 7 Personen (5+2), kannst Du führerscheinfrei mit Deiner Familie oder Freunden die Natur genießen.
Die Ariella bietet ein Elternschlafzimmer mit Doppelbett, ein Kinderschlafzimmer mit Etagen und Einzelbett sowie eine Doppelbettcouch im Wohnzimmer für zusätzlichen Schlafplatz.
Bei schönem Wetter lädt die großzügige Dachterrasse mit wetterfester Loungegarnitur und optionaler Bimini-Verschattung zum Entspannen ein. An kühleren Abenden oder regnerischen Tagen kannst Du es dir vor dem Gas-Kamin gemütlich machen und einen Film auf dem großen Smart-TV genießen. WLAN ist ebenfalls vorhanden. Das Boot ist mit allem ausgestattet, was Du für einen erholsamen Urlaub brauchst: eine voll ausgestattete Küche mit Gasherd, Backofen, Geschirrspüler sowie eine Heizung, Klimaanlage und ein WC mit bodengleicher Dusche. Eine Badeleiter am Außendeck sorgt für einen einfachen Zugang ins Wasser.
Für einen gemütlichen BBQ-Abend kannst Du einen Grill ausleihen, und für zusätzliche Aktivitäten stehen ein Stand-Up Paddle, Kanu, Elektroschlauchboote oder Fahrräder gegen Gebühr zur Verfügung. Die Mitnahme von Hunden ist bis 15 kg erlaubt.
Wichtige Hinweise
● Durchfahrtshöhe: 3,90 m (mit ausgeklapptem Sonnensegel: 5,45 m). Bitte klappe das Sonnensegel ein, bevor Du eine Brücke passierst.
● Mindestanzahl der Personen an Bord: Für die Manövrierfähigkeit der Hausboote (Anlegen, Ankern, Schleusen) sind mindestens 3 erwachsene Personen (oder 2 Erwachsene + 1 handlungsfähiger Jugendlicher) erforderlich.
● Wetterbedingte Einschränkungen: Die Hausboote sind windanfällig. Bei einer Windstärke von 3 (ab 12 km/h) kann die Marina die Ausgabe der Hausboote verhindern, um die Sicherheit aller Beteiligten zu gewährleisten.
Das Hausboot ist mit einer Bordbatterie ausgestattet, die euch eine autarke Stromversorgung für eine Nacht ohne Landstrom sichert. Das Beste daran: Ihr könnt frei ankern und die Ruhe der Natur in vollen Zügen genießen – fernab vom Trubel der Marinas. Aber denkt daran: Nach spätestens 24 Stunden braucht die Batterie frischen Strom aus einer Marina, sonst drohen nicht nur nervige Warntöne, sondern auch der Ausfall wichtiger Systeme wie Bug- und Heckstrahlruder – was das Manövrieren erschwert. Deshalb unser Tipp: Geht bewusst mit dem Strom um und nutzt nur, was wirklich nötig ist. So bleibt eure Freiheit auf dem Wasser ungetrübt! Worauf wartest Du noch? Mieten, einsteigen, los schippern und Deinen unvergesslichen Hausbooturlaub genießen!
Aktivity
Rodina
Podrobnosti
Podmínky pronájmu
Typ pronájmu
Bez skippera
Předběžný čas začátku a konce pronájmu:
13:00 / 09:00
Kauce
29 164,80 kč
(Spravováno přímo vlastníkem)
Správa kauce
Správa kauce: Spravováno přímo vlastníkem
Vlastník si vybral možnost správování kauce přímo během pronájmu. Neposílejte žádnou zálohu, před osobním setkáním s vlastníkem a prohlédnutím lodi.
Podmínky zrušení
Individualizované
Palivo
Není zahrnuto v ceně
Loď
Typ lodi
Říční loď
Značka - Model
WOMA
-
Woma D13
Rok výroby
2022
Povolená kapacita
7
Počet kajut
2
Počet toalet
1
Délka (m)
13,7
Šířka (m)
4,1
Ponor (m)
1
Motor
50hp
(1 motor)
Kapacita paliva
80 L
Nádrž na sladkou vodu
450 L
Zvířata jsou na palubě povolena
Ne
Umístění
Přístav
Další možné odjezdy
Fürstenberg/Havel
Podmínky zrušení pronajímatele
Podmínky zrušení:
Individualizované
Bez služebních poplatků SamBoat. Jejich proplacení závisí na důvodu a je na uvážení platformy.
Plán lodě
Akce
Dodatečná sleva
Klub Samboat
-5%
Členové klubu SamBoat mají nárok na dodatečné slevy na vybrané lodě.
Objevte klub SamBoat
53 201 kč
na týden
Minimální délka pronájmu :
4 dny
Od 16 May
Do 22 May :
59 350 kč
na týden
Minimální délka pronájmu :
4 dny
Od 23 May
Do 29 May :
59 350 kč
na týden
Minimální délka pronájmu :
4 dny
Od 30 May
Do 05 June :
59 350 kč
na týden
Minimální délka pronájmu :
4 dny
Od 06 June
Do 12 June :
59 350 kč
na týden
Minimální délka pronájmu :
4 dny
Od 13 June
Do 19 June :
59 350 kč
na týden
Minimální délka pronájmu :
4 dny
Od 20 June
Do 26 June :
69 242 kč
na týden
Minimální délka pronájmu :
6 dny
Od 27 June
Do 03 July :
69 242 kč
na týden
Minimální délka pronájmu :
6 dny
Od 04 July
Do 10 July :
74 589 kč
na týden
Minimální délka pronájmu :
6 dny
Od 11 July
Do 17 July :
74 589 kč
na týden
Minimální délka pronájmu :
6 dny
Od 18 July
Do 24 July :
79 936 kč
na týden
Minimální délka pronájmu :
6 dny
Od 25 July
Do 31 July :
79 936 kč
na týden
Minimální délka pronájmu :
6 dny
Od 01 August
Do 07 August :
79 936 kč
na týden
Minimální délka pronájmu :
6 dny
Od 08 August
Do 14 August :
79 936 kč
na týden
Minimální délka pronájmu :
6 dny
Od 15 August
Do 21 August :
74 589 kč
na týden
Minimální délka pronájmu :
6 dny
Od 22 August
Do 28 August :
74 589 kč
na týden
Minimální délka pronájmu :
6 dny
Od 29 August
Do 04 September :
69 242 kč
na týden
Minimální délka pronájmu :
6 dny
Od 05 September
Do 11 September :
59 350 kč
na týden
Minimální délka pronájmu :
6 dny
Od 12 September
Do 18 September :
59 350 kč
na týden
Minimální délka pronájmu :
4 dny
Od 19 September
Do 25 September :
53 201 kč
na týden
Minimální délka pronájmu :
4 dny
Od 26 September
Do 02 October :
53 201 kč
na týden
Minimální délka pronájmu :
4 dny
Od 03 October
Do 09 October :
50 528 kč
na týden
Minimální délka pronájmu :
4 dny
Od 10 October
Do 16 October :
50 528 kč
na týden
Minimální délka pronájmu :
4 dny
Od 17 October
Do 23 October :
50 528 kč
na týden
Minimální délka pronájmu :
4 dny
Od 24 October
Do 30 October :
50 528 kč
na týden
Minimální délka pronájmu :
4 dny
Od 31 October
Do 06 November :
50 528 kč
na týden
Minimální délka pronájmu :
4 dny
Od 07 November
Do 13 November :
50 528 kč
na týden
Minimální délka pronájmu :
4 dny
Od 14 November
Do 20 November :
50 528 kč
na týden
Minimální délka pronájmu :
4 dny
Od 21 November
Do 27 November :
50 528 kč
na týden
Minimální délka pronájmu :
4 dny
Od 28 November
Do 04 December :
50 528 kč
na týden
Minimální délka pronájmu :
4 dny
Od 05 December
Do 11 December :
50 528 kč
na týden
Minimální délka pronájmu :
4 dny
Od 12 December
Do 18 December :
50 528 kč
na týden
Minimální délka pronájmu :
4 dny
Od 19 December
Do 25 December :
50 528 kč
na týden
Minimální délka pronájmu :
4 dny
Od 26 December
Do 31 December :
50 528 kč
na týden
Minimální délka pronájmu :
4 dny
Zbytek roku
:
50 528 kč
na týden
Minimální délka pronájmu :
7 dny
Záruka nejlepší ceny
U společnosti SamBoat vám zaručujeme, že vždy nabízíme nejlepší ceny.
Našli jste tuto nabídku na jiném webu za zajímavější cenu? Níže naleznete informace, jak nám to sdělit, abychom mohli provést potřebné kontroly a obrátit se na vás
Při rezervaci pomocí SamBoat získáte další exkluzivní výhody: tým odborníků na lodní sporty k vašemu poslouchání, platební možnosti, věrnostní program nabízející vícenásobné odměny.
Proč chcete nahlásit tento inzerát?
Sdílet inzerát Ariella
Text zkopírován do schránky!
Funkce kopírovat/vložit není podporována ve vašem prohlížeči. Chcete-li zkopírovat váš inzerát, stiskněte Ctrl+c!